Sati Darshan Project at Malad West by Goyal Realty (P51800045878)
  • Rating:
  • ()

Sati Darshan - Malad West

Goyal Realty
Project Details, Configuration & Prices
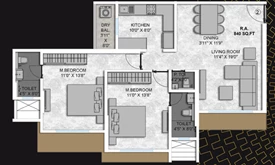
2 BHK831 Sq.ft. Carpet ₹ 2.57 Cr ++
2 BHK840 Sq.ft. Carpet ₹ 2.60 Cr ++
3 BHK1033 Sq.ft. Carpet ₹ 3.20 Cr ++
3 BHK1039 Sq.ft. Carpet ₹ 3.22 Cr ++
Project overview
Sati Darshan Project at Malad West by Goyal Realty (P51800045878) is a RERA approved Under Construction Project with RERA ID P51800045878 slated to be ready for possession by May 2026 with 2/3 BHK apartments / Flats starting from ₹ 2.58 Crs onwards

Sati Darshan is a collaborative project by Goyal Realty and Malpani Group located on Amarsi Road, Malad West. The development has achieved Full CC and is registered with RERA under No. P51800045878, ensuring compliance. Construction progress is notable, with the completion of the Third Podium Slab. The project is set to be completed by 31st May 2026 as per RERA guidelines. The residential complex consists of a single tower with Ground + 3 Podiums + 17 Floors, offering 2 and 3 BHK residences. Configurations include 2 BHK units ranging from 831 to 840 Sq.ft. and 3 BHK options spanning 1033 to 1039 Sq.ft. Jodi options are available for combined spaces. Residents benefit from ramp surface parking and proximity to various Derasars. The entrance is designed with high ceilings. Sati Darshan offers amenities such as Jacuzzi, Steam/Sauna, Fitness Centre, Multi-Sport Court, Multi-Purpose Lawn, and a Kids Play area. Hi-speed elevators provide efficient vertical transportation. Sati Darshan aims to provide practical living with a focus on convenience and modern amenities, offering a blend of comfort and functionality.
Sati Darshan QR Code
Sati Darshan
MahaRERA - P51800045878

Marina Enclave

₹ 1.41 Crs. onwards
Malad West
2/3 BHK apartments
View Details

9 Business Bay

₹ 1.41 Crs. onwards
Malad West
Office BHK apartments
View Details

Auris Clara

₹ 1.79 Crs. onwards
Malad West
2/3 BHK apartments
View Details

Raheja Exotica Siena

₹ 85 Lacs. onwards
Malad West
1 BHK apartments
View Details

Arkade Eden

₹ 2.24 Crs. onwards
Malad West
2/3 BHK apartments
View Details

Auris Ilaria

₹ 1.08 Crs. onwards
Malad West
1/2/3 BHK apartments
View Details

Sheth Irene

₹ 1.1 Crs. onwards
Malad West
1/2 BHK apartments
View Details

Raheja Exotica Verona

₹ 3.4 Crs. onwards
Malad West
3/4 BHK apartments
View Details
Project Details
Project details were last updated in Oct 2025
  • Project:
    Sati Darshan
  • Location:
  • Malad West, Amarsi Rd, Near Rani Sati Dadi Temple,
  • Const. Stage:
    Under Construction
  • Possession:
    May 2026
  • Floors:
    3
Developer Details

Goyal Realty

  • Developer:
    Goyal Realty
  • Phone:
  • Website:
    https://goyalrealty.com/
  • Address:
  • Prathamesh Star Building, 1st Floor, Ashtavinayak Nagar New MHB Colony, Mumbai – 400091
Project Ratings
Project Brochures
Brochures of Sati Darshanby Goyal Realty
Project Brochures
  • MPE/Brochures/30781/Sati Darshan Brochure.pdf
Project Amenities
Amenities offred in Sati Darshan
LIFESTYLE AMENITIES
Power BackupOutdoor GamesIndoor GamesKid's play areaHigh speed elevatorsGrand entrance lobbyGymnasiumAluminium Sliding WindowsPOP finished wallsImported Sanitary FittingsConcealed PlumbingConcealed WiringGranite PlatformSecurity Help DeskReception DeskMassage Room
Project RERA Details
RERA Project Status New
Proposed Possession 31 May 2026
Revised Possession 01 Jan 1900
Extended Possession
Litigations No Litigations
Project RERA Details
MAHA RERA No: P51800045878
RERA Project Name Malad Sati Darshan Chs Ltd.
RERA Location 581, 580
RERA Developer Goyal Sati Darshan Llp
Architect Ameet Pawar
Project RERA Details
Project Type Residential / Group Housing
Funding Bank HDFC BANK
Last Modified 20 Jun 2023
Last Retrived 26 Jul 2025

Most active Channel Partners, Real Estate Agents in Malad West

Facilities & Amenities
Facilities, Amenities & Common areas details of Sati Darshanlast updated on 26 Jul 2025 as per information obtained from MARA RERA. Disclaimer
Project Facilities & Amenities Available Details
Aggregate area of recreational Open Space
Na
Community Buildings
Na
Electrical Meter Room, Sub-Station, Receiving Station
Wip
Energy management
Na
Fire Protection And Fire Safety Requirements
Wip
Landscaping & Tree Planting
Wip
Open Parking
Wip
Sewerage (Chamber, Lines, Septic Tank , STP)
Wip
Solid Waste Management And Disposal
Wip
Storm Water Drains
Wip
Street Lighting
Internal Layout Lighting Proposed
Treatment And Disposal Of Sewage And Sullage Water
Wip
Water Conservation, Rain water Harvesting
Wip
Water Supply
Labour Drinking Connection Obtained
Buildings / Wings in Sati Darshan
Apartments Statistics, Saleable Area Statistics and available inventory snapshot of Sati Darshanby Goyal Realtylast updated on 26 Jul 2025 as per information obtained from MARA RERA. Disclaimer

27217 Sq. ft.

Project Area

6925 Sq. ft.

Recreational Open Space

Total 1

Wings / Towers in Project

Apartments Statistics

33 apartments in total
Total
33
Booked
11
Available
22

Saleable Area Statistics (Sq. ft.)

29579 Total
Total
29579
Booked
10569
Available
19009
Total 33 apartments in project. 11 apartments booked. 33% apartments booked.
Total 2747.92 saleable area. 981.9 apartments booked.
36% area booked.

Malad Sati Darshan Chs Ltd

WingProposed Date of CompletionNumber of SlabsPlinthBasement'sStiltsPodium'sOpen ParkingsClosed Parkings
Malad Sati Darshan Chs LtdMay 202621101314111
Apartment TypeCarpet AreaNumber of ApartmentsBooked Apartments
2 BHK77.22 Sq.mts. ( 831 Sq.ft. )8
2 BHK78.08 Sq.mts. ( 840 Sq.ft. )16
4 Booked25% Booked
25% Booked
3 BHK95.98 Sq.mts. ( 1033 Sq.ft. )2
None Booked0% Booked
0% Booked
3 BHK96.07 Sq.mts. ( 1034 Sq.ft. )2
2 Booked100% Booked
100% Booked
3 BHK96.56 Sq.mts. ( 1039 Sq.ft. )2
1 Booked50% Booked
50% Booked
3 BHK97.16 Sq.mts. ( 1046 Sq.ft. )1
1 Booked100% Booked
100% Booked
3 BHK100.8 Sq.mts. ( 1085 Sq.ft. )1
1 Booked100% Booked
100% Booked
3 BHK105.7 Sq.mts. ( 1138 Sq.ft. )1
1 Booked100% Booked
100% Booked
33 total apartments / 11 apartments booked. 33% apartments booked.
Work Description in Building Malad Sati Darshan Chs LtdCompletion
Basement (if any)
Completed 100% done
100% Booked
Excavation
Completed 100% done
100% Booked
External plumbing and external plaster, elevation, completion of terraces with waterproofing of the Building / wing.
work-in-progress30% done
30% Booked
Installation of lifts, water pumps, Fire Fighting Fittings and Equipment as per CFO NOC, Electrical fittings to Common Areas, electro, mechanical equipment, Compliance to conditions of environment /CRZ NOC, Finishing to entrance lobby/s, plinth protection, paving of areas appurtenant to Building/Wing, Compound Wall and all other requirements as may be required to Obtain Occupation /Completion Certificate
Installation of Lifts, water pumps, Fire Fighting Fittings and Equipment as per CFO NOC, Electrical fittings, mechanical equipment, compliance to conditions ofenvironment/CRZ NOC, Finishing to entrance lobby/s, plinth protection. paving of areas appurtenant to Building/Wing, Compound Wall and all other requirements as may be required to complete project as per specifications in agreement of Sale.
Internal walls, Intemal Plaster, Floorings, Floors and windows within Flats/Premises
work-in-progress60% done
60% Booked
Internal walls, Internal Plaster, Floorings within Flats/Premises, Doors and Windows to each of the Flat/Premises
work-in-progress50% done
50% Booked
Plinth
Completed 100% done
100% Booked
Podiums (if any)
work-in-progress80% done
80% Booked
Sanitary Fittings within the Flat/Premises,Electrical Fittings within the Flat/Premises
Sanitary Fittings within the flats / premises
Slabs of Super Structure
work-in-progress90% done
90% Booked
Staircases, Lifts Wells and Lobbies at each Floor level connecting Staircases and Lifts, Overhead and Underground Water Tanks.
work-in-progress75% done
75% Booked
Staircases, Lifts Wells and Lobbies at each Floor level Overhead and Underground Water Tanks
work-in-progress85% done
85% Booked
Stilt Floor
Completed 100% done
100% Booked
The external plumbing and external plaster, elevation, completion of terraces with waterproofing of the Building/Wing
X number of Basement(s) and Plinth
Completed 100% done
100% Booked
X number of Podiums
work-in-progress80% done
80% Booked
X number of Slabs of Super Structure
work-in-progress80% done
80% Booked
Project Consultants
Channel Partners Registered by Developer
Goyal Realty
for Project
Malad Sati Darshan Chs Ltd.
last updated on 26 Jul 2025 as per information obtained from MARA RERA. Disclaimer
Name Company Location Mobile Designation

About Goyal Realty

Goyal Realty